О проекте
Семья с маленьким ребёнком, переехавшая в Дубай, столкнулась с вторичкой после аренды: формально «готовая к жизни» квартира оказалась устаревшей по качеству отделки, инженерии и планировочным сценариям. Их запрос — быстро получить светлый, гармоничный по Васту и эргономике интерьер, в котором будет удобно жить здесь и сейчас, без ощущения временности.
Контекст
Семья с маленьким ребёнком, переехавшая в Дубай, столкнулась с вторичкой после аренды: формально «готовая к жизни» квартира оказалась устаревшей по качеству отделки, инженерии и планировочным сценариям. Их запрос — быстро получить светлый, гармоничный по Васту и эргономике интерьер, в котором будет удобно жить здесь и сейчас, без ощущения временности.
Объект и задача
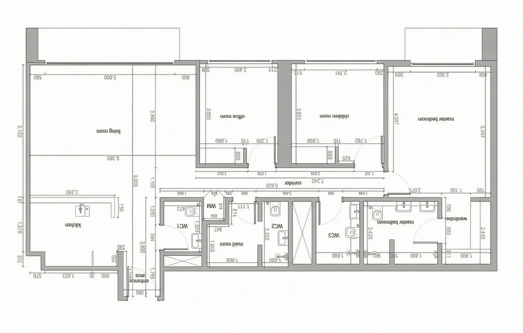
Квартира 3BR 127 м² в Creek Harbor для семьи с дочкой 6 лет, переехавших в Дубай в июле 2025. Вторичка в собственности с отделкой/мебелью от застройщика (предыдущий владелец сдавал в аренду); из хоумстейджинга перешли к капитальному ремонту после аудита.
Выполненные работы
Капитальный ремонт под ключ за 3 месяца (реализация за 2 месяца). Планировка по Васту, пропорциям и эргономике: широкое изголовье с тумбами, панели для стола в спальне, продление перегородки в прихожей. Светлый интерьер без перегрузки декором.
Результат
За два месяца мы перезагрузили уставшую «арендную» вторичку в светлый, чистый дом для семьи, которая только что начала новую главу жизни в Дубае. Квартира перестала ощущаться временным убежищем: благодаря Васту, продуманным пропорциям и эргономике здесь появилось ощущение опоры и порядка — от широкого изголовья, которое собирает спальню в целостный объём, до полноценной прихожей, где больше не заходишь «с порога на кухню». Интерьер получился легким, не перегруженным декором, но при этом очень домашним: он поддерживает ритм семейной жизни, помогает быстрее адаптироваться к новой стране и даёт то самое чувство «мы наконец дома», которого невозможно добиться косметическим хоумстейджингом.
До и после

