About the Project
We carefully turned a page in this house’s story: without changing the familiar layout, the first floor stopped looking like a heavy 1990s interior and started living as a bright, open space for everyday life and guests.
Context
An elderly couple had been living in an interior from a previous era, filled with dark wood and heavy detailing that no longer matched their pace or their wish to host guests and hold intimate creative evenings. They wanted a refreshed first floor that kept the known configuration but completely changed the mood of the house.
Object and Task
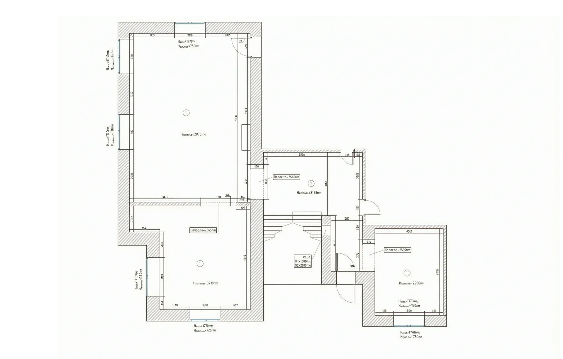
Renovation of the 106 m² first floor of a villa for an elderly couple whose children live abroad and visit on weekends. The existing interior was rooted in a 1990s language of dark wood and plasterboard forms.
Completed Works
Complete change of concept and palette without replanning. Zoning of the first floor into a ceremonial hall with mirror and statement flooring, a fireplace lounge with sofas and armchairs, a piano area in the living room, and a kitchen-dining zone that can be screened with sliding partitions.
Result
The house kept its structure but completely changed its emotional register. The entrance now creates the right first impression, the living room with fireplace and piano has become a setting for intimate evenings, and the kitchen-dining area is both practical for the hostess and easy to conceal when guests arrive. What used to feel like a museum of the past now feels warm, social, and alive.
Before & After

