О проекте
Семья с двумя подростками устала от ощущения «тяжёлого» загородного дома, где вещи и мебель забирают на себя всё пространство. Им нужен был светлый, воздушный интерьер, в котором второй свет не теряется за мебелью, а становится сердцем дома, и где каждому комфортно жить, не спотыкаясь взглядом о визуальный шум.
Контекст
Семья с двумя подростками устала от ощущения «тяжёлого» загородного дома, где вещи и мебель забирают на себя всё пространство. Им нужен был светлый, воздушный интерьер, в котором второй свет не теряется за мебелью, а становится сердцем дома, и где каждому комфортно жить, не спотыкаясь взглядом о визуальный шум.
Объект и задача
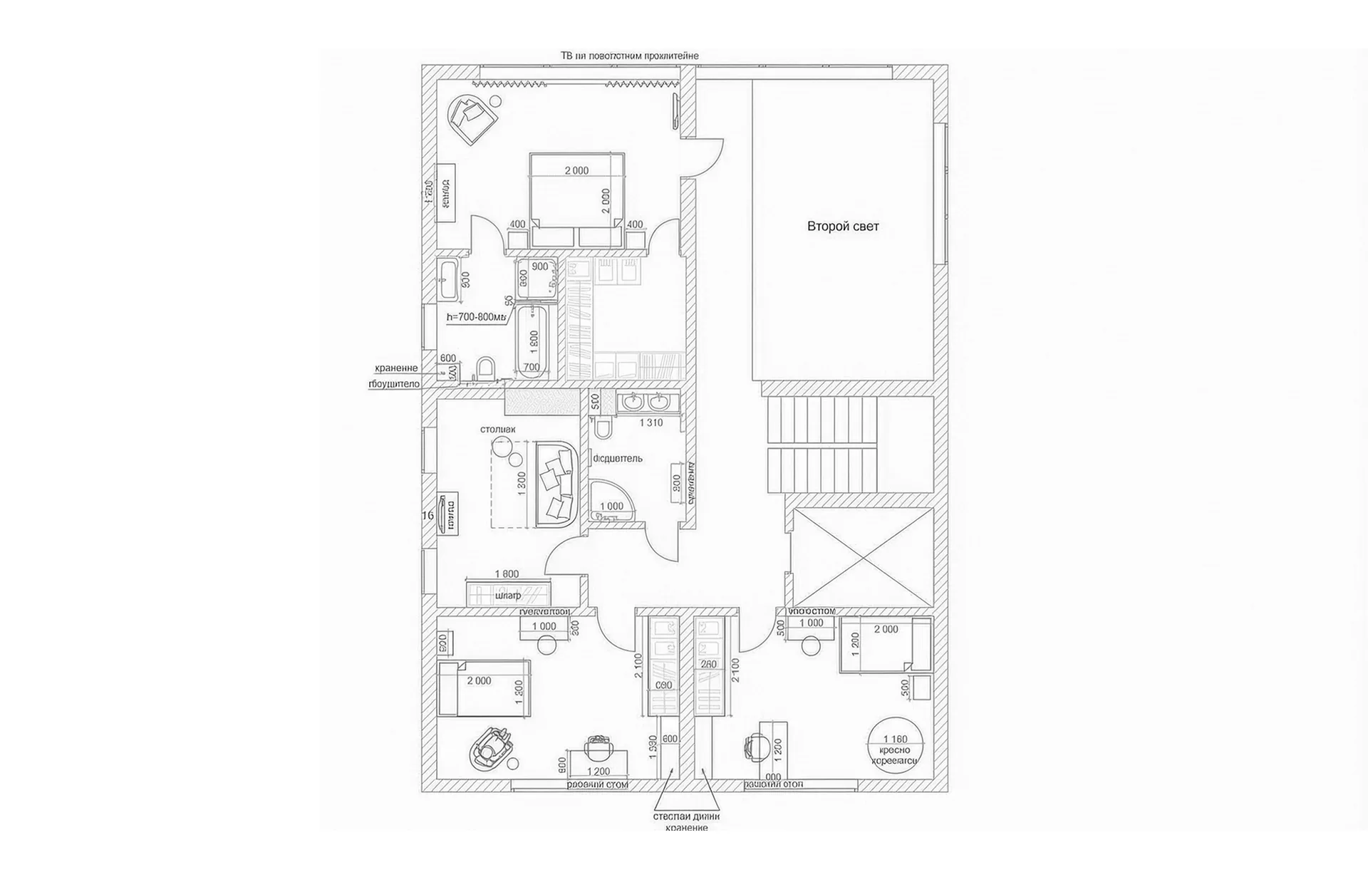
Загородный дом 250 м² в Подмосковье со вторым светом для семьи из четырёх человек; создать интерьер, не перегруженный мебелью, с просторной общей зоной, кабинетом, гардеробной и санузлом на первом этаже и продуманными спальнями наверху.
Выполненные работы
Планировка с большой общей зоной, кабинетом, гардеробной и санузлом на первом этаже. Проработка стены второго света в трёх вариантах и финальная композиция: слэб натурального оникса, МДФ-панели и латунная вставка с подсветкой по периметру. Светлая, просторная гостиная. Мастер-спальня, комнаты дочерей и гостевая на втором этаже. Изголовье в мастер-спальне из 3D-панелей «как плитка шоколада» и скрытые двери в санузел и гардеробную.
Результат
Мы превратили дом, где «не было воздуха», в пространство, которое буквально дышит светом: второй свет стал главным арт-объектом, а не сложной задачей, и теперь задаёт тон всему первому этажу. Ониксовая композиция с латунью, лёгкая мебель и грамотное распределение функций сделали гостиную местом, где всей семье действительно хочется проводить время вместе, а спальни — тихими личными мирами, без лишних акцентов, но с характером.
До и после



