عن المشروع
جاء أصحاب مركز الأطفال بمنهج مونتيسوري بألم يعرفه كل والد ومربٍ واعٍ: فالديكورات الداخلية «الطفولية» النمطية لا تدعم استقلالية الطفل ولا تعكس قيم المنهج. كانوا بحاجة إلى داخلية تحمل هوية المركز، دافئة عاطفياً لكنها عملية، تعمل لصالح فكرة مونتيسوري، وتساعد الأطفال على التركيز، وتبقى في ذاكرة الأهل منذ الزيارة الأولى.
السياق
جاء أصحاب مركز الأطفال بمنهج مونتيسوري بألم يعرفه كل والد ومربٍ واعٍ: فالديكورات الداخلية «الطفولية» النمطية لا تدعم استقلالية الطفل ولا تعكس قيم المنهج. كانوا بحاجة إلى داخلية تحمل هوية المركز، دافئة عاطفياً لكنها عملية، تعمل لصالح فكرة مونتيسوري، وتساعد الأطفال على التركيز، وتبقى في ذاكرة الأهل منذ الزيارة الأولى.
المساحة والمهمة
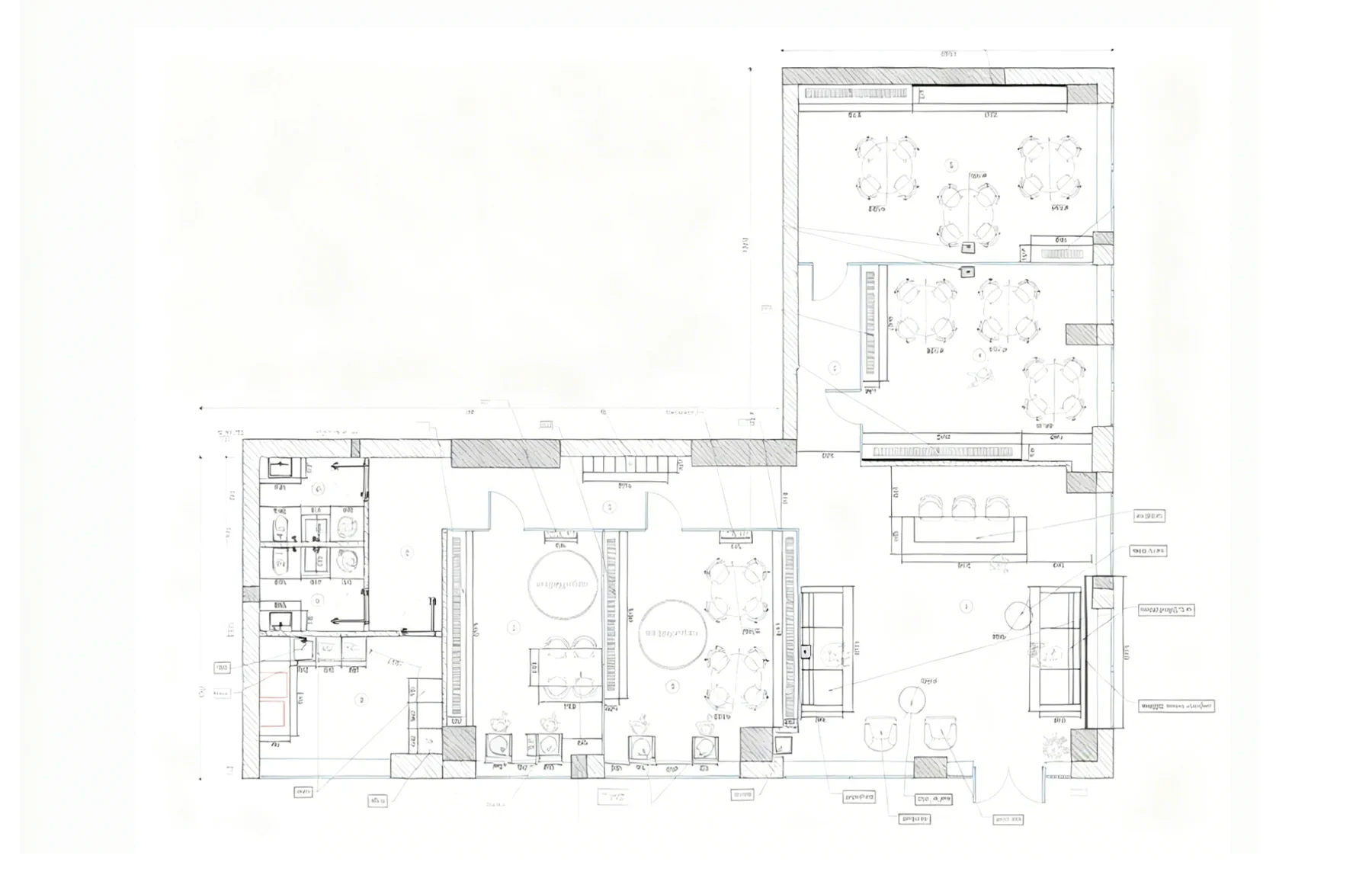
مركز تعليمي بمنهج مونتيسوري في كريك بيتش بمساحة 200 م² ومخطط مفتوح. كان يجب استيعاب الاستقبال وأربع قاعات دراسية وحمّامين وغرفة تخزين. أصبحت الهوية البصرية للمركز أساس المفهوم، بينما ساعد رمز القمر على تليين الخطوط الحادة وإضافة إحساس بالرعاية والدفء.
الأعمال المنجزة
تخطيط وفق الفاستو بالتعاون مع @ok_architetto. ريسبشن على هيئة بيوت صغيرة. القاعات: Rain and Waves باللون الأزرق، مع رليف للموج وإضاءات دائرية؛ Clouds/Foam باللون الرمادي، مع رسوم للسحب ولوحات مغناطيسية وبروجكتورات؛ فواصل زجاجية منزلقة تحمل اقتباسات من مونتيسوري. الحمّامات: أصفر للأطفال وأزرق للبالغين؛ إضاءة جدارية ومعلّقة تحت سقف بارتفاع 3.7 م. المواد والعلامات الرئيسية: لياسة بارزة بتأثير الموج. بلاط بورسلان Arcana Stracciatella بطابع التيرازو.
النتيجة
جمعنا مساحة تُقرأ فيها طريقة مونتيسوري ليس في البرامج فقط، بل في كل تفصيلة من الداخل: منذ اللحظة الأولى في منطقة الريسبشن لا يدخل الطفل ووالده إلى «مجرد نادٍ آخر للأطفال»، بل إلى بيئة دافئة ومعروفة ببيوت صغيرة وقمر وهوية بصرية مدمجة بهدوء. تعمل قاعات Rain and Waves وClouds/Foam كأداة حسية مدروسة: لون الجدران، والرليفات، والضوء، والفواصل الزجاجية مع الاقتباسات تساعد الأطفال على التركيز بشكل أفضل، والتنقل بحرية، والشعور بأنهم مشاركون محترمون في العملية، لا مجرد «مجموعة». بفضل تخطيط الفاستو والانتباه إلى التفاصيل، من ارتفاع وحدات الإضاءة إلى ملمس بلاط البورسلان Arcana Stracciatella، يبقى المركز في ذاكرة الأهل منذ الزيارة الأولى كمكان اعتُني فيه بالطفل حقاً. لا يشتت الداخل الانتباه بزخرفة صاخبة، بل يدعم بهدوء الاستقلالية والفضول والإحساس بالأمان، لذلك يرغب المرء في البقاء هنا أطول من المعتاد والعودة مرة أخرى.
قبل وبعد

