عن المشروع
زوجان في منتصف العمر يعيشان في منزل خارج المدينة تعبا من إنهاء كل مساء بالطريق إلى خارج المدينة بعد العمل والمسرح والحفلات الموسيقية. كانا يحتاجان إلى «كبسولة إنقاذ» حضرية: شقة يمكن العودة إليها في وقت متأخر من المساء، والنوم جيداً فيها، ومن دون الإحساس بجو مكتب أو فندق، بل ببيتهما الحضري الحميم.
السياق
كان زوجان في منتصف العمر يعيشان في منزل خارج المدينة قد تعبا من إنهاء كل مساء بالطريق إلى خارج المدينة بعد العمل والمسرح والحفلات الموسيقية. كانا يحتاجان إلى «كبسولة إنقاذ» حضرية: شقة يمكن العودة إليها في وقت متأخر من المساء، والنوم جيداً فيها، ومن دون الإحساس بجو مكتب أو فندق، بل ببيتهما الحضري الحميم.
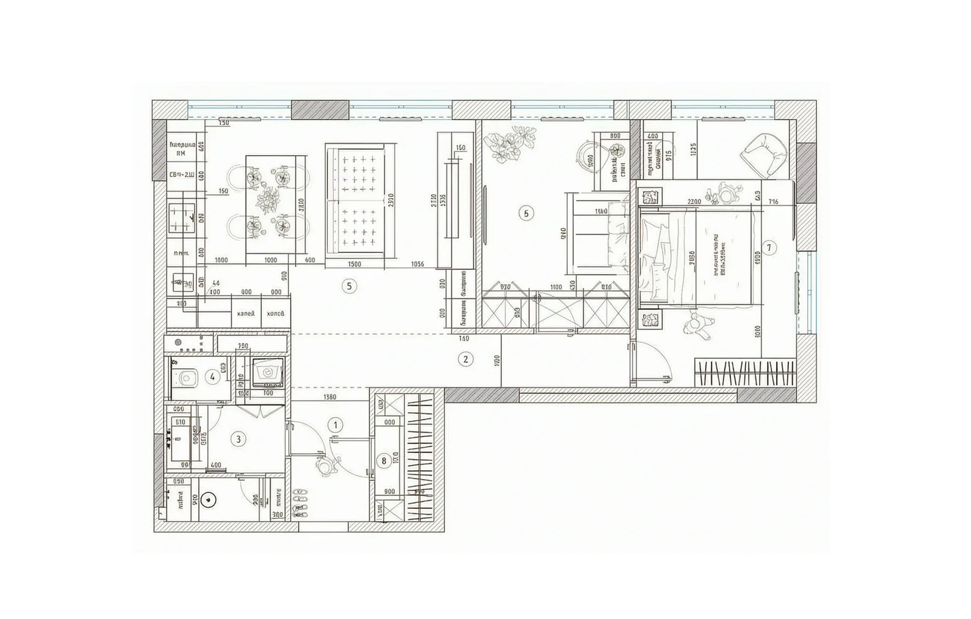
المساحة والمهمة
شقة بمساحة 80 م² في مجمع Life Varshavskaya من فئة الأعمال لزوجين. كان المطلوب إنشاء مساحة تحتضن الساكنين ضمن لوحة رمادية وبيج مع مواد معاصرة.
الأعمال المنجزة
تصميم داخلي بدرجات رمادية وبيج، مع انتقالات ناعمة في اللون والملمس. استخدام الرخام والخشب وألواح الجبس ثلاثية الأبعاد والقوالب الزخرفية والجص الزخرفي.
النتيجة
أصبحت هذه الشقة جناحهما الحضري الخاص: بعد عرض مسرحي أو عشاء متأخر، لا حاجة إلى الذهاب إلى خارج المدينة؛ يكفي أن يصعدا إلى البيت ويغلقا خلفهما الباب على مساحة «تلفهما» بنعومة بدرجات هادئة وأسطح ملمسية. تصنع طبقات الرمادي والبيج في اللون والخامات إحساساً بشرنقة محمية، وتضيف المواد النبيلة شيئاً من المكانة؛ فهي ليست «نقطة نوم» عابرة، بل عش حضري كامل يرغبان في العودة إليه.
قبل وبعد

